Przestronny 124 m2

To kompaktowy, urokliwy dom z drewna o powierzchni 124 m²

Dane Techniczne

Powierzchnia Zabudowy

112 m2

Powierzchnia Użytkowa

124 m2

Czas realizacji

6 miesięcy

Aktualna cena

od 620.000 PLN

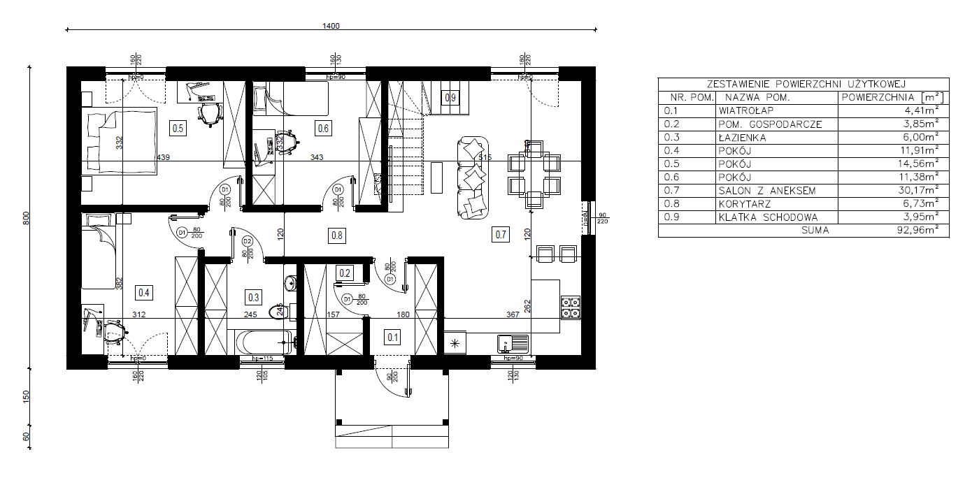
Rzut Parteru

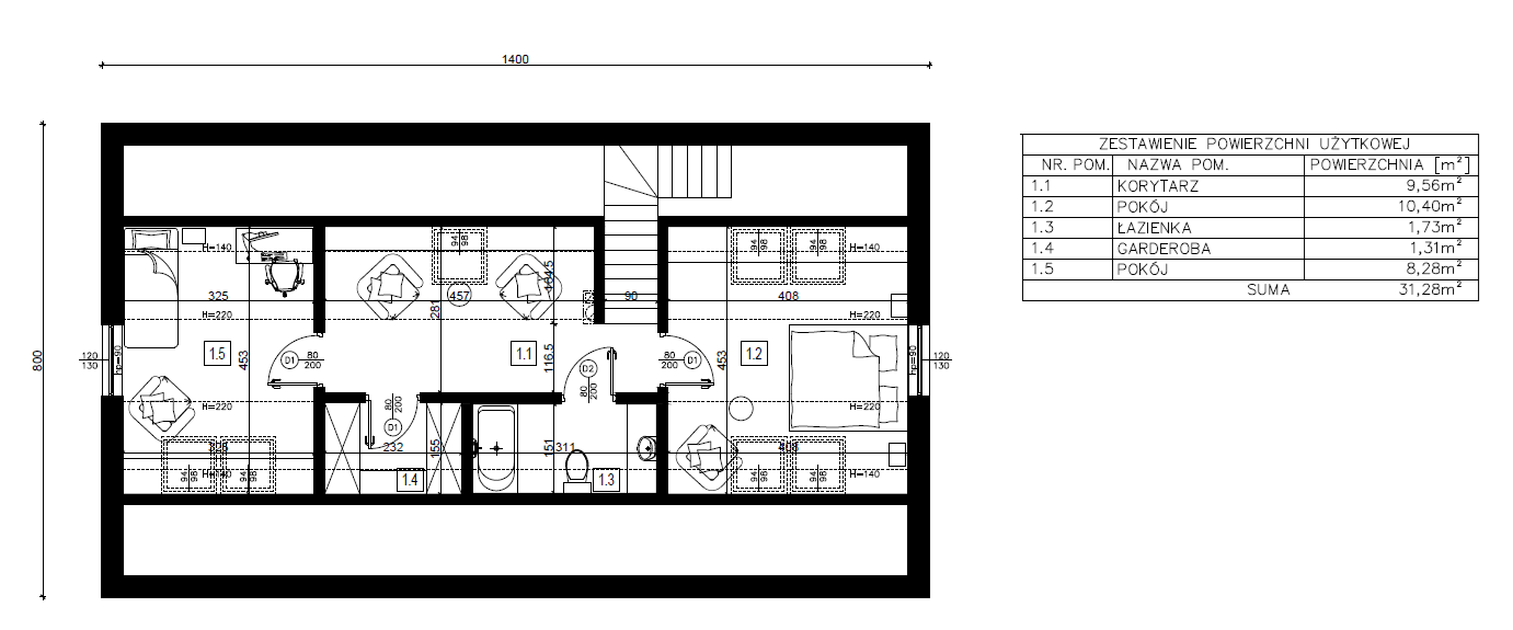
Rzut Poddasza

Chciałbyś poznać szczegóły projektu?

Porozmawiaj bezpośrednio z naszym specjalistą i przekonaj się sam jak prosta jest współpraca z naszym stowarzyszeniem!

Możesz również skontaktować się poprzez formularz lub mailowo.

Poznaj naszą ofertę gotowych domów!

Sprawdź czy któryś z projektów odpowiada Twoim preferencjom. Masz inny projekt, który jest dla Ciebie idealny? 
W stowarzyszeniu znajdziemy dla Ciebie odpowiedniego wykonawcę który podejmie się budowy.

Dowiedz się więcej o Stowarzyszeniu!

Zrzeszamy wysokiej klasy wyspecjalizowane firmy, przetestowane przez nas i sprawdzone pod kątem rzetelności. Gwarantujemy szybką i bezpieczną budowę Państwa projektu!
Jeśli jesteś wykonawcą i chciałbyś zostać przetestowany, zapraszamy!

Wizualizacje

Nasze inne projekty